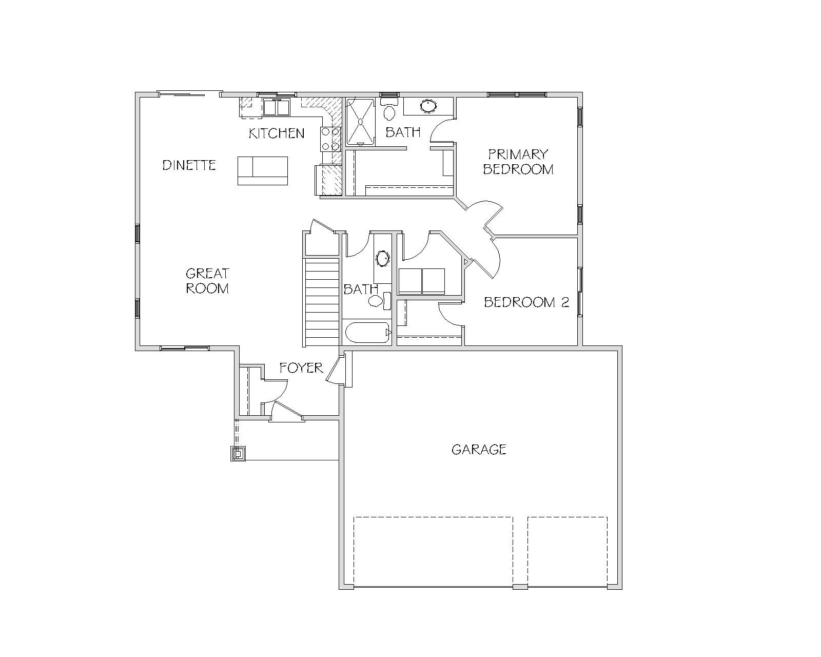
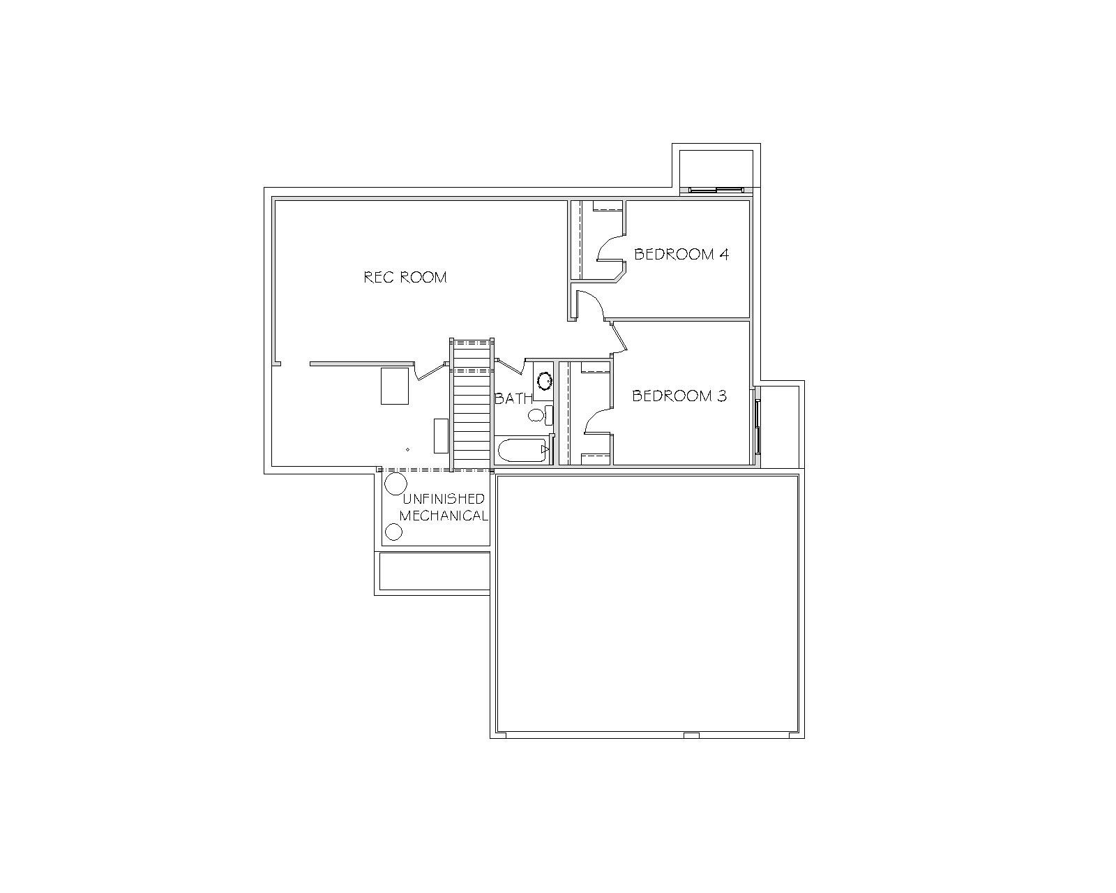
Balsam II

Executive Series – Rambler