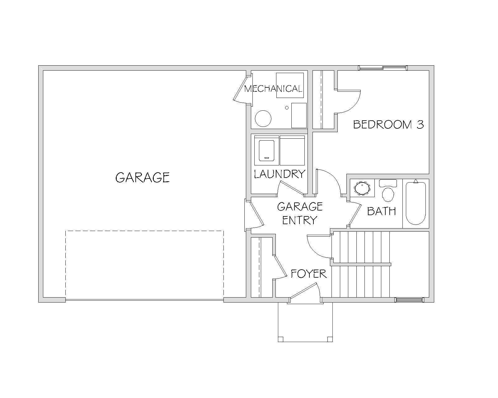
Boardwalk

Executive Series – Slab