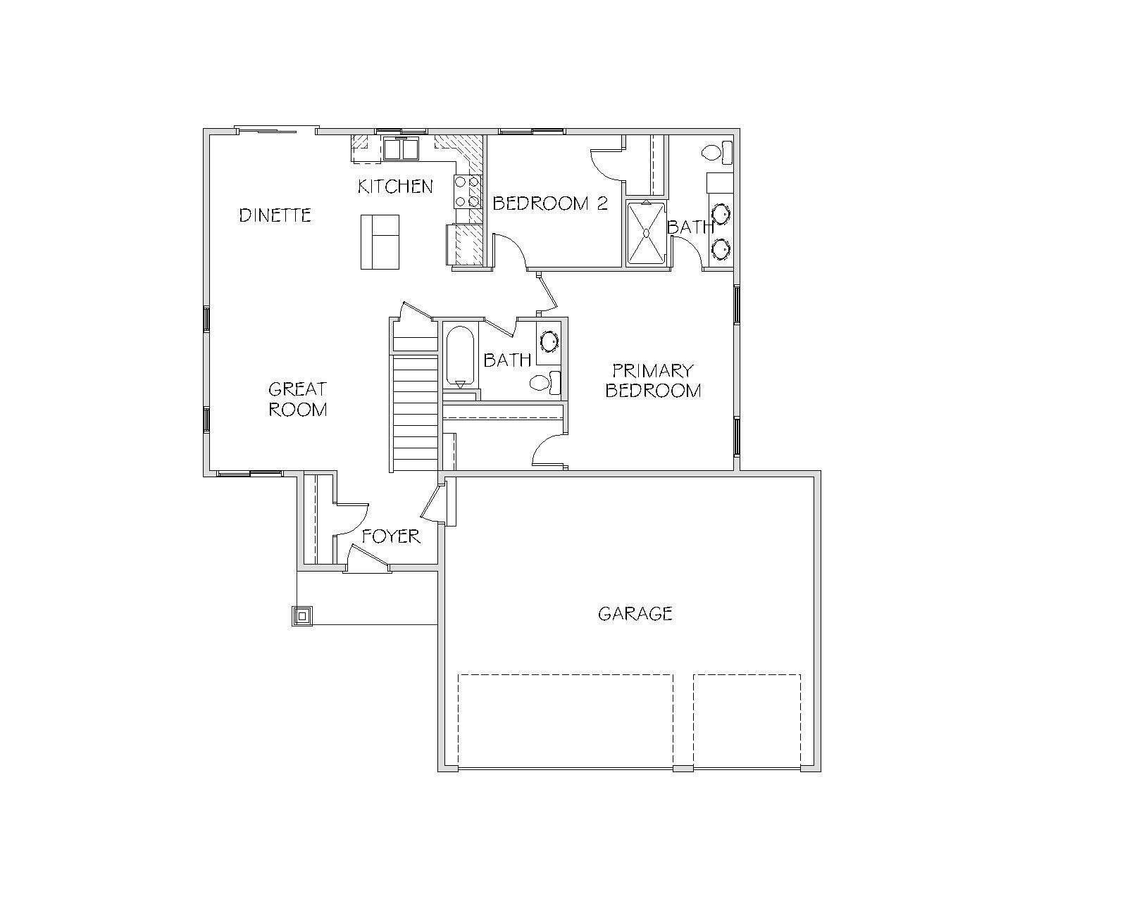
Oakwood II

Executive Series – Rambler