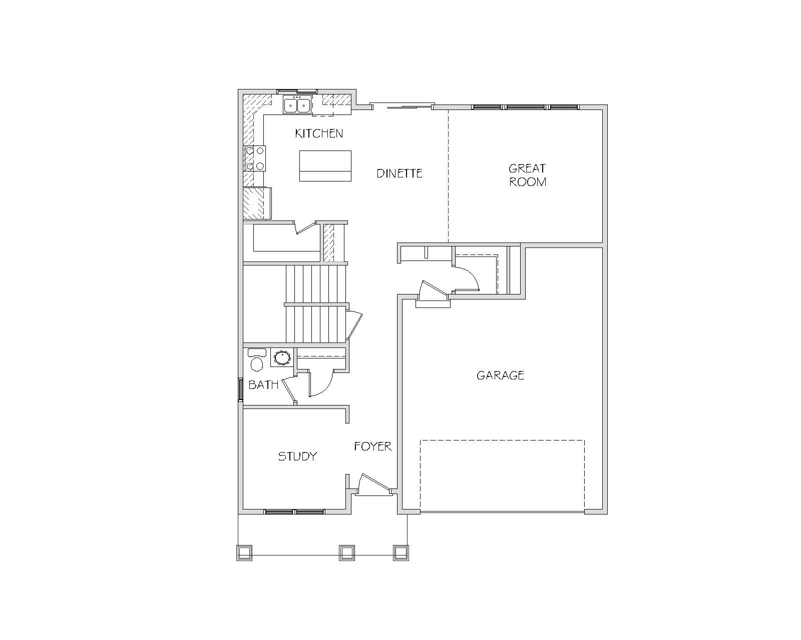
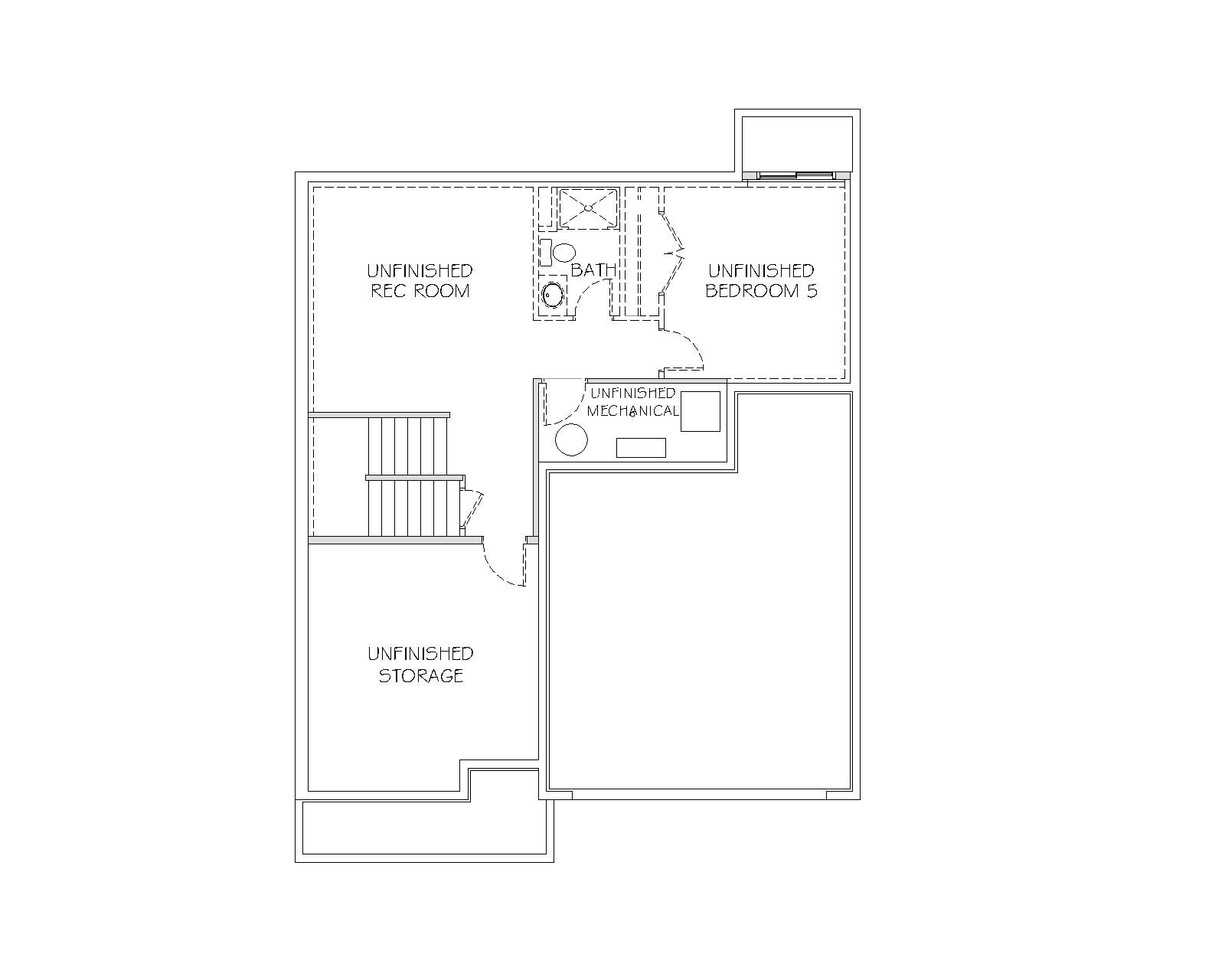
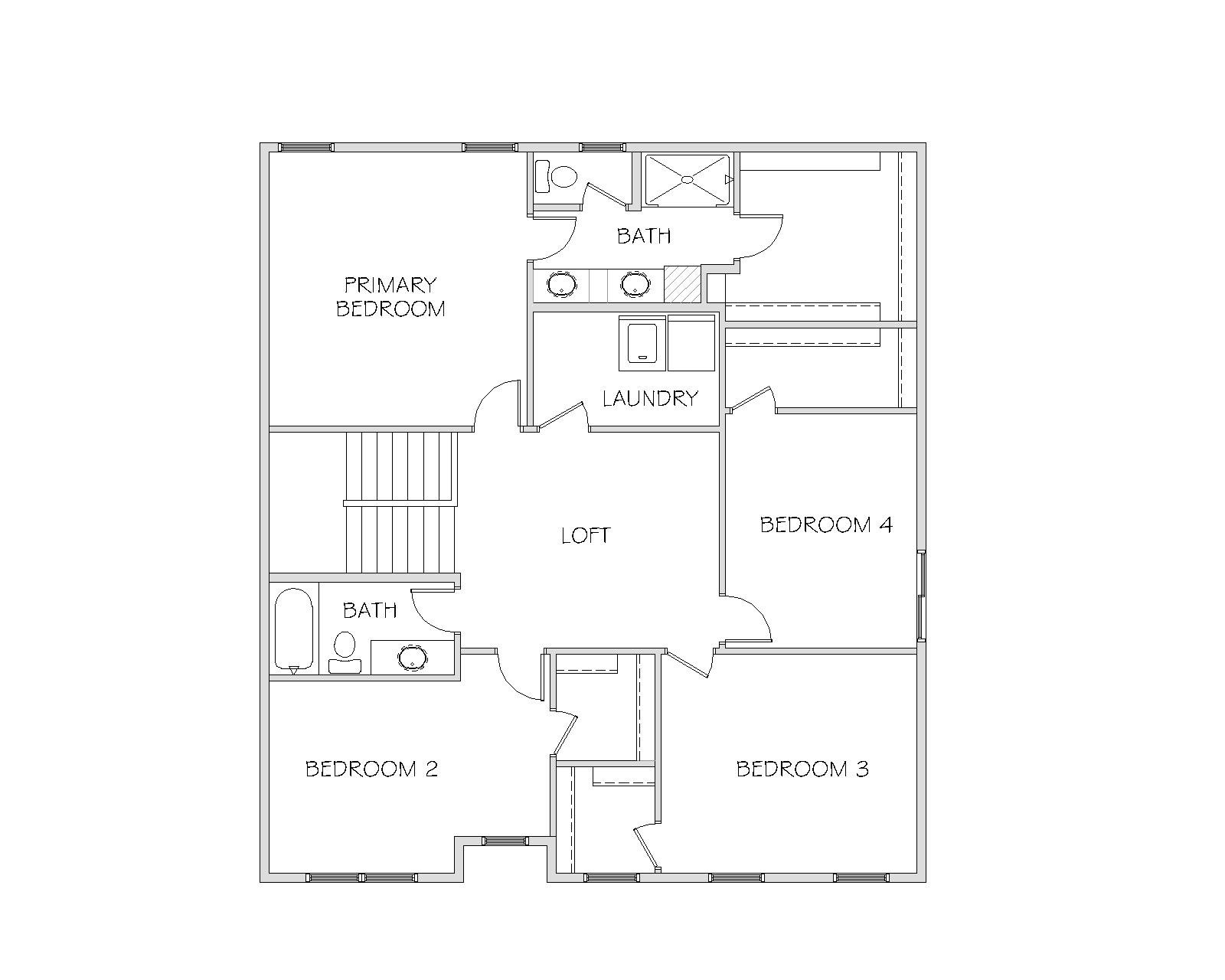
St James

Executive Series – Two Story