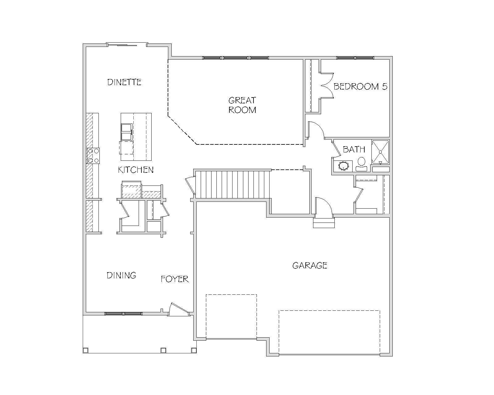
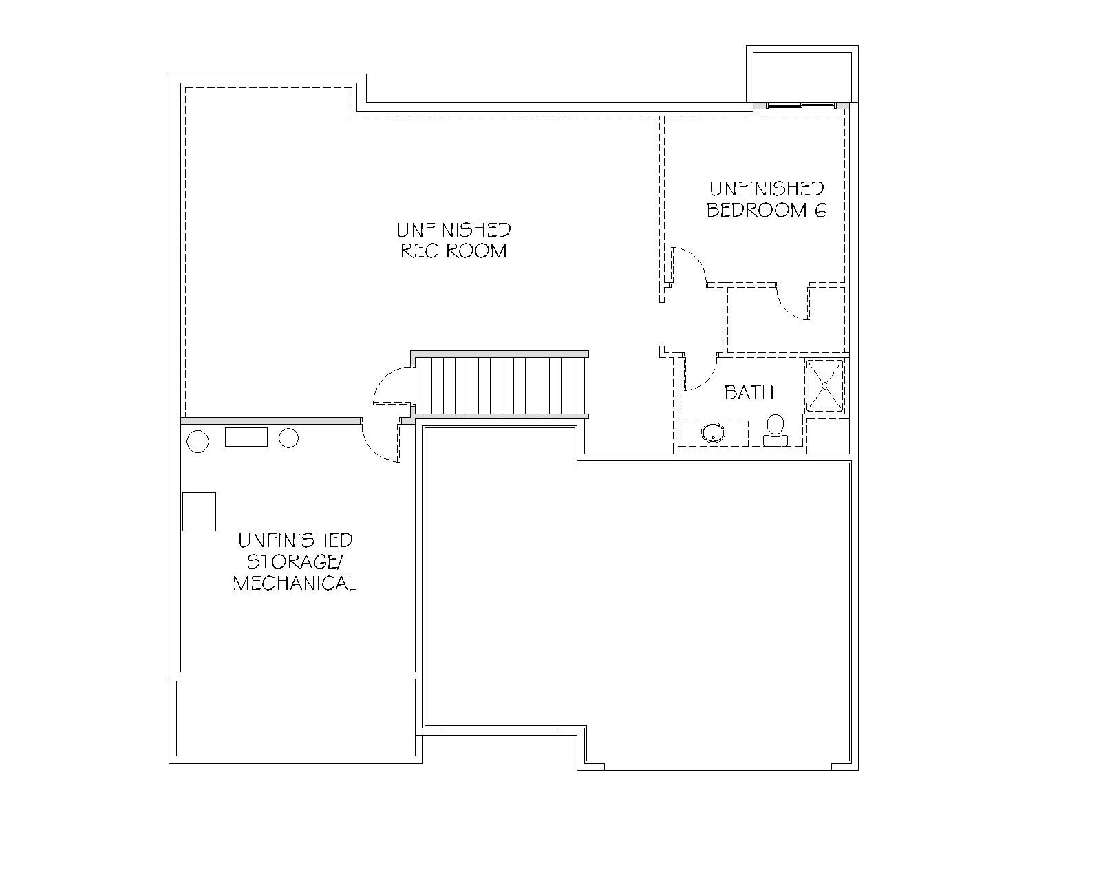
Summerlyn

Executive Series – Two Story