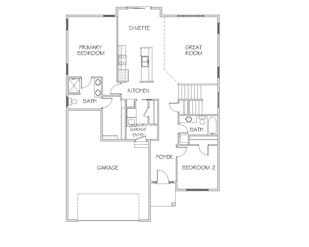
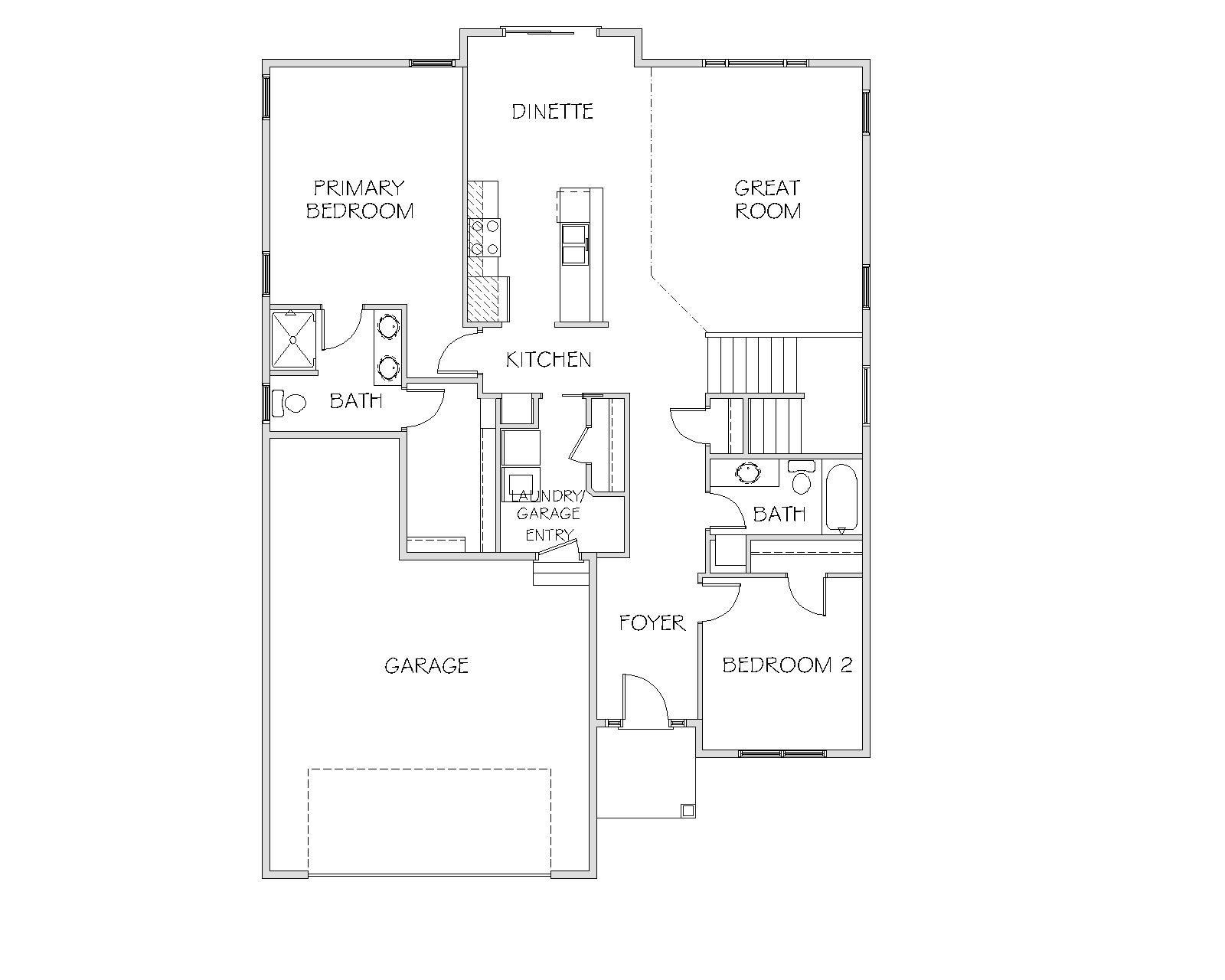
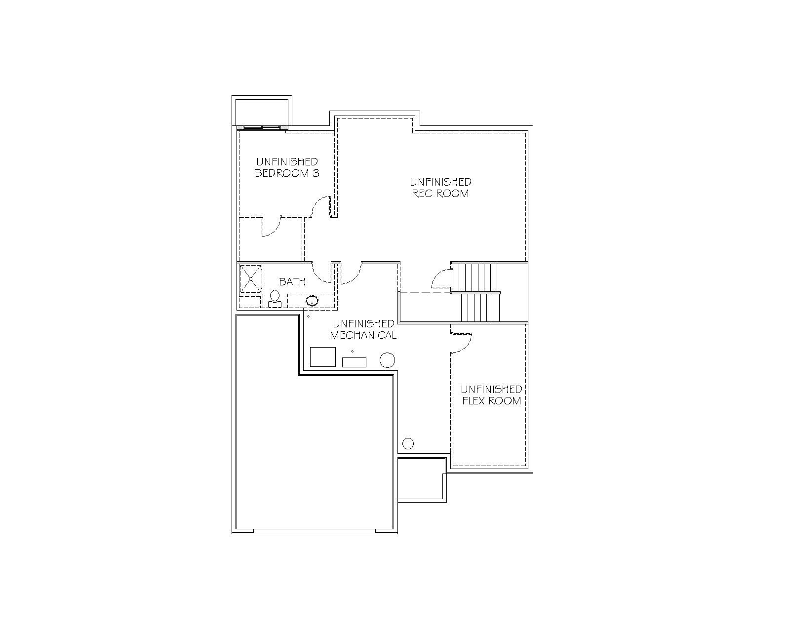
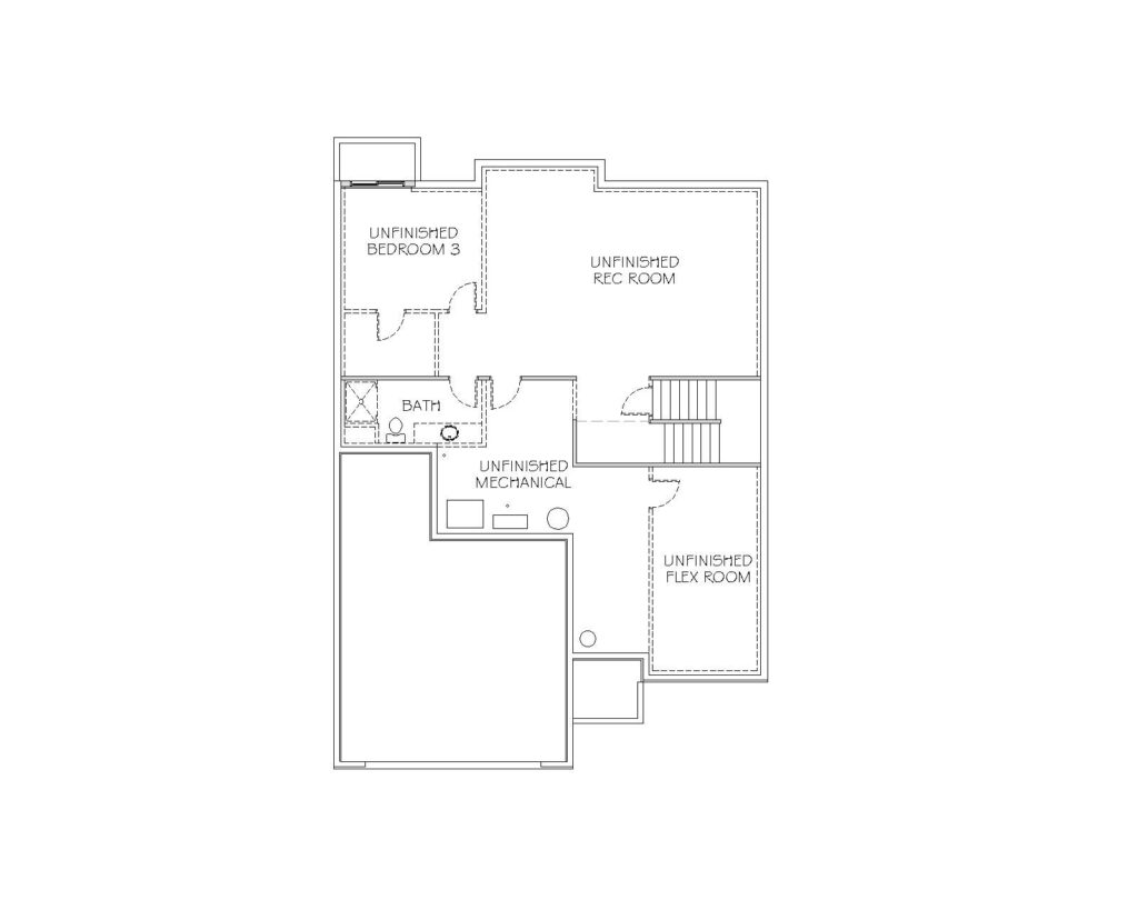
Mayberry

Fieldstone Favorites – Rambler