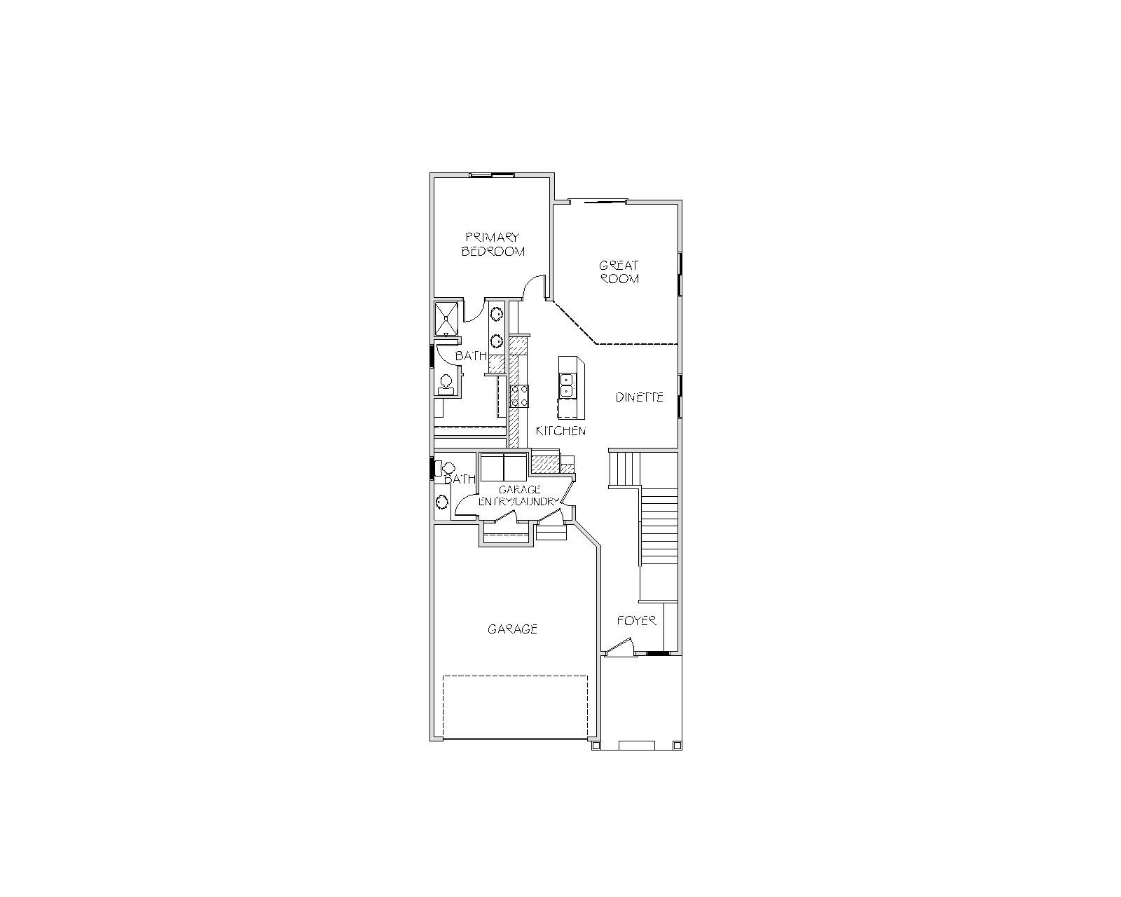
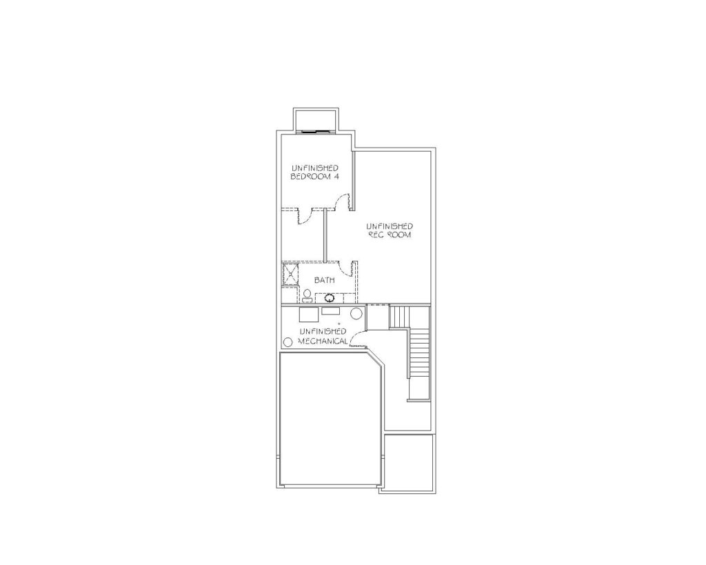
Chatham

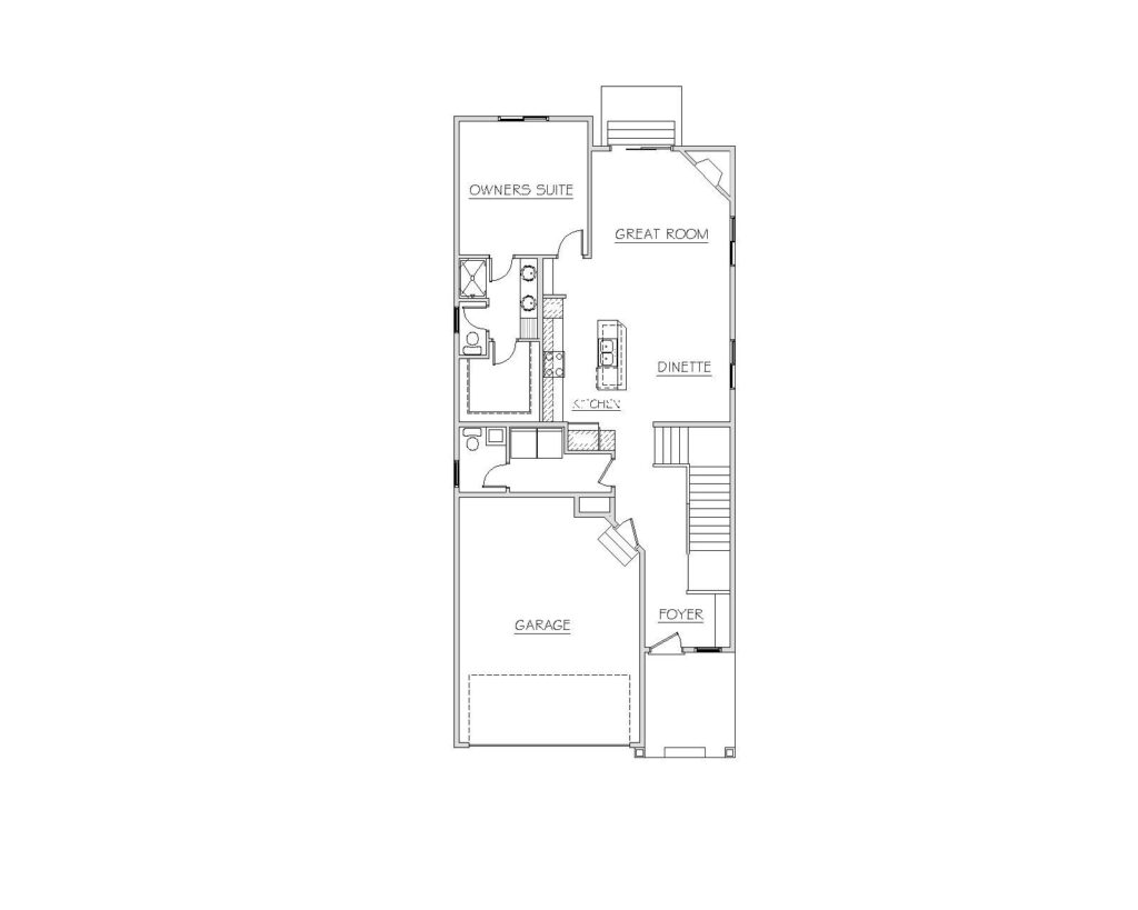
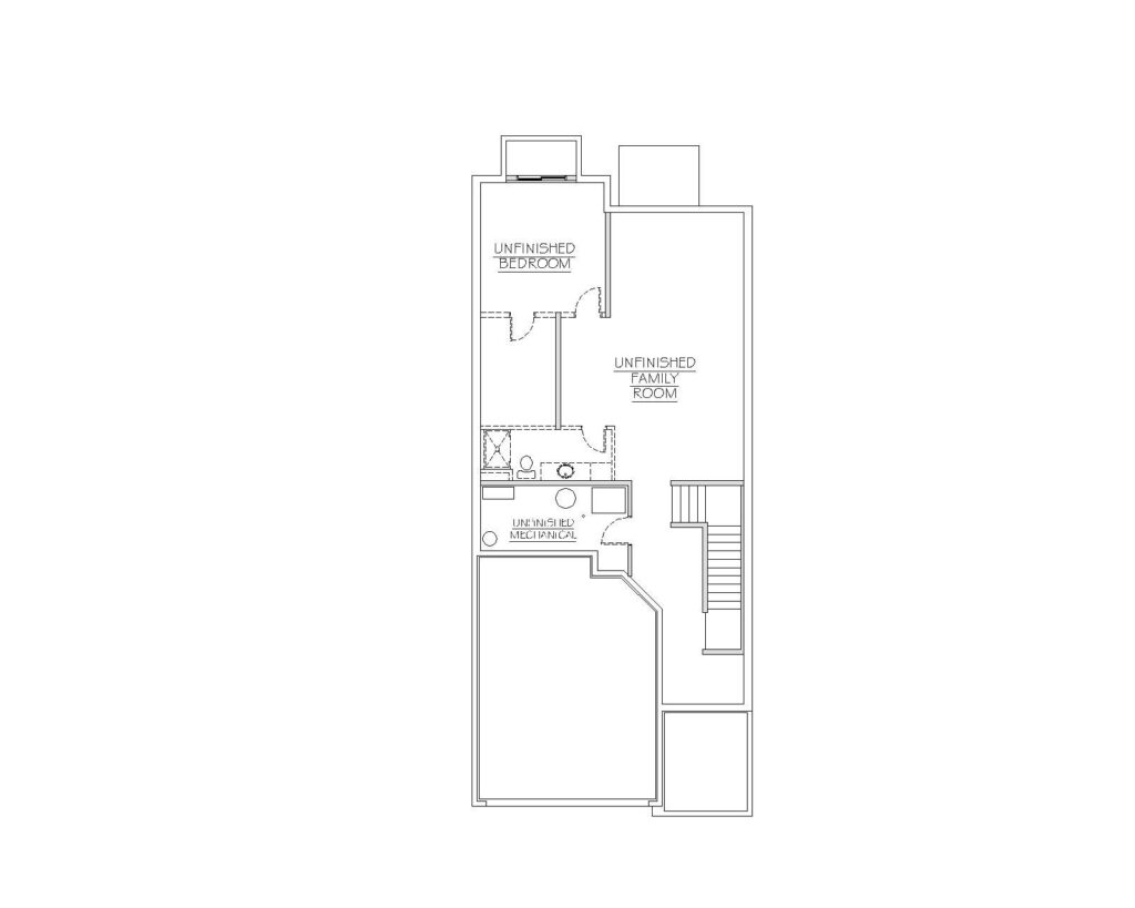
Peltier Reserve – Two Story