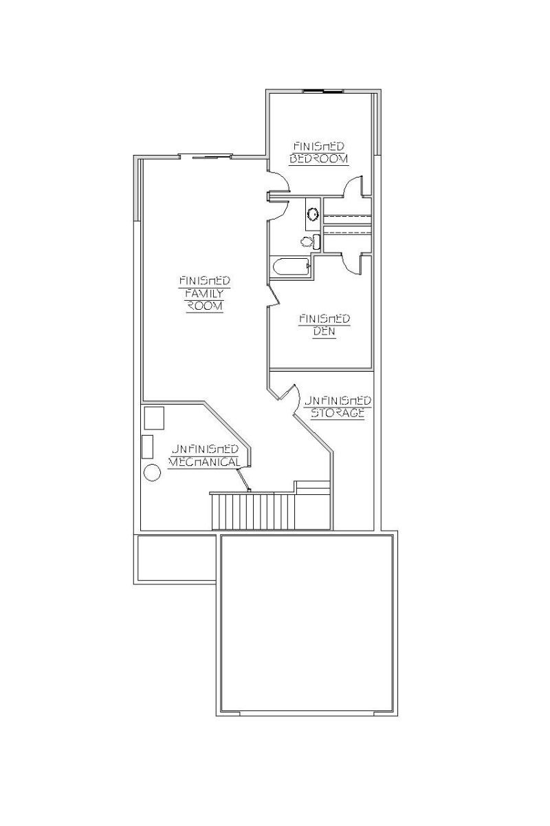
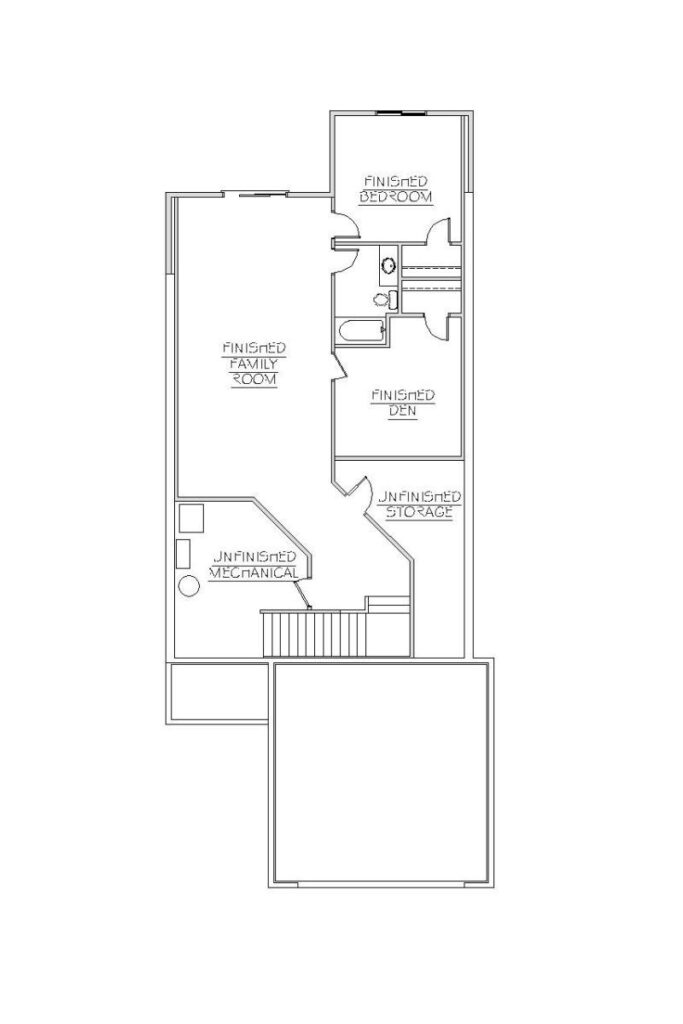
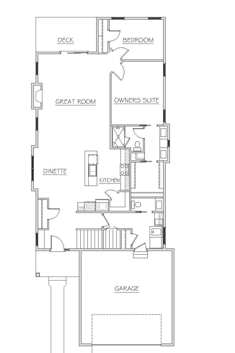
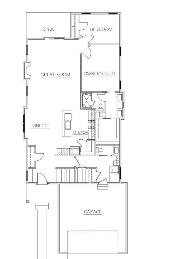
Newberg

The Farm Villas – Rambler