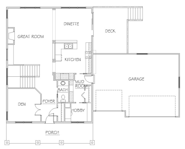
Alexandria

Customizable Series – Two Story