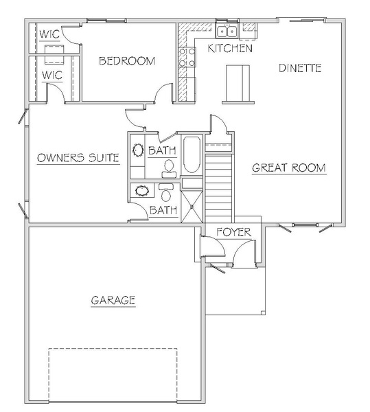
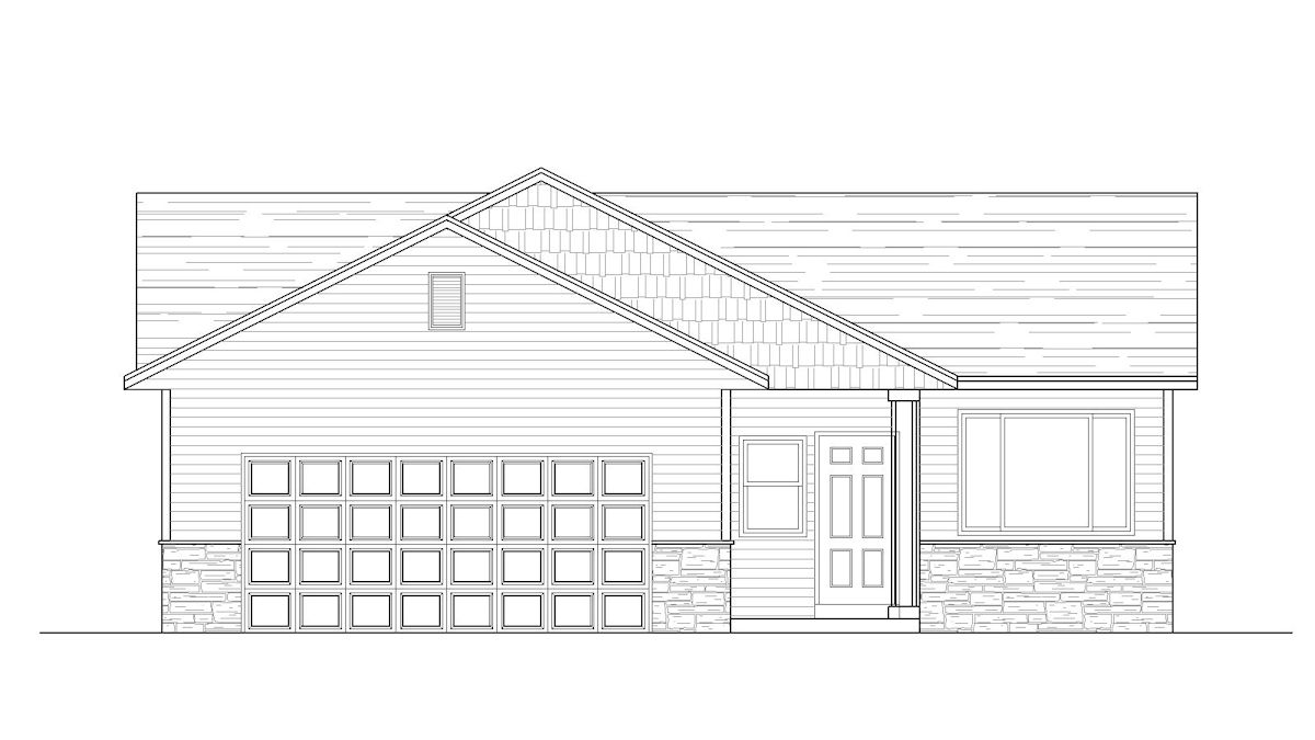
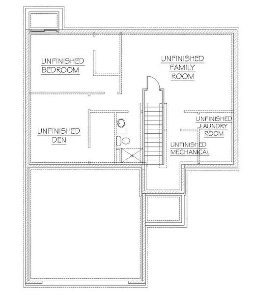
Biltmore

Customizable Series – Rambler