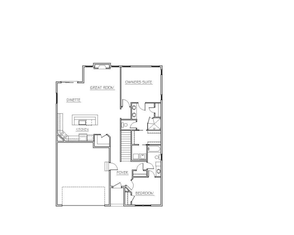
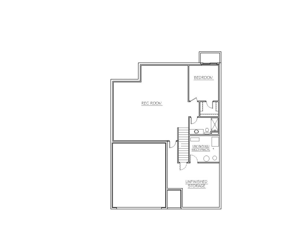
Bramburg

Customizable Series – Rambler