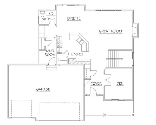
Colbalt II

Customizable Series – Two Story