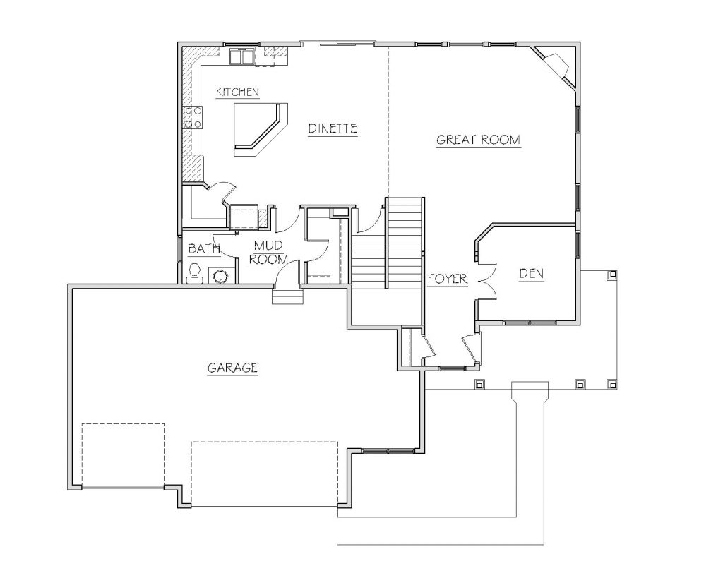
Courtland II

Customizable Series – Two Story