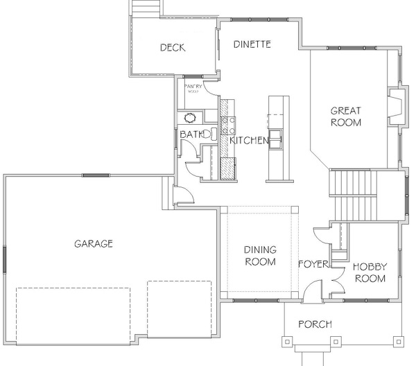
Cypress

Customizable Series – Two Story