Generation

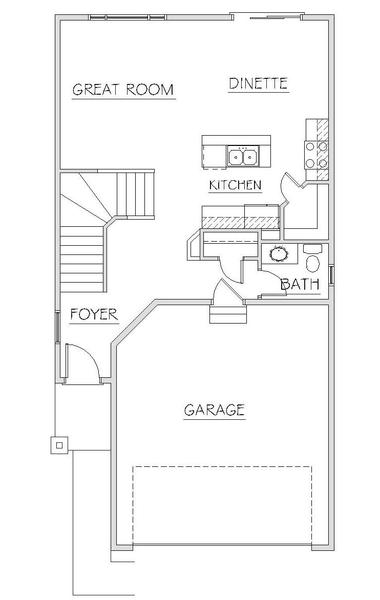
Customizable Series – Two Story