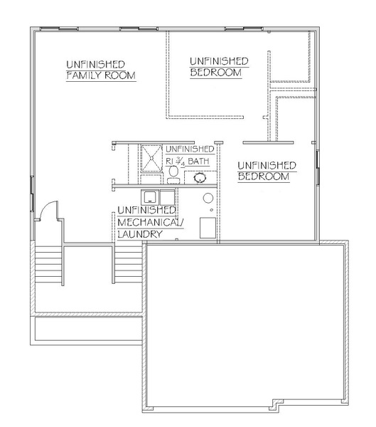
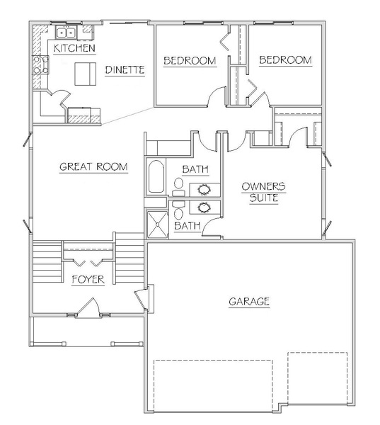
Hayden

Customizable Series – Split and Multi-Level