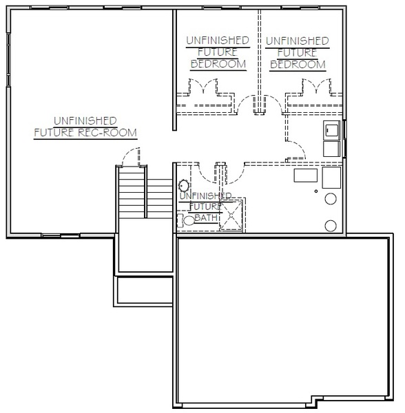
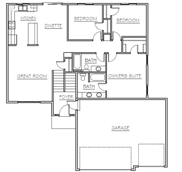
Innsbruck

Customizable Series – Split and Multi-Level