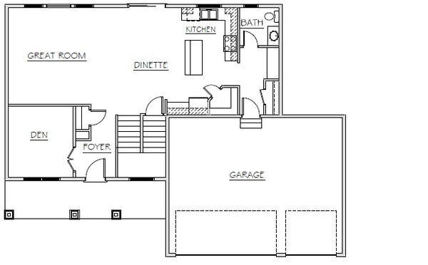
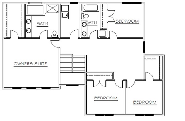
Mystic

Customizable Series – Two Story