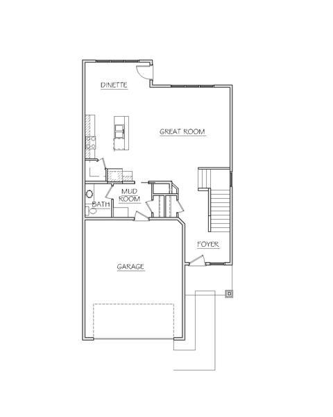
Osakis

Customizable Series – Two Story