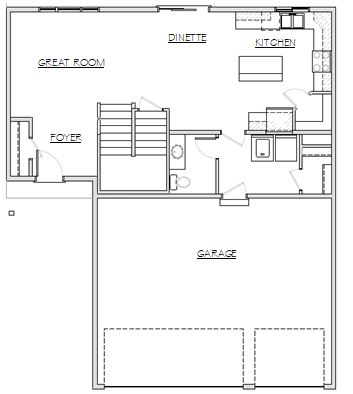
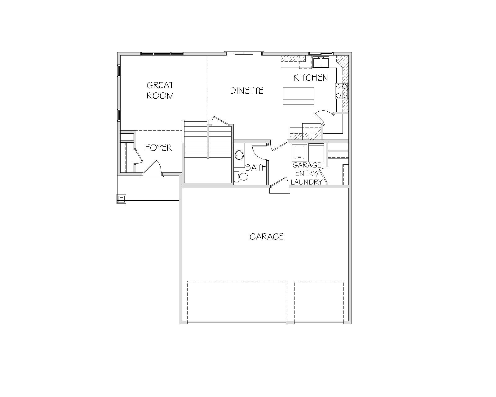
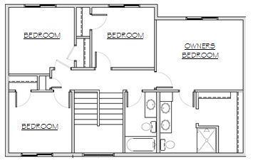
Spruce

Executive Series – Two Story