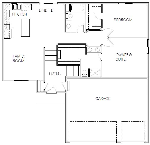
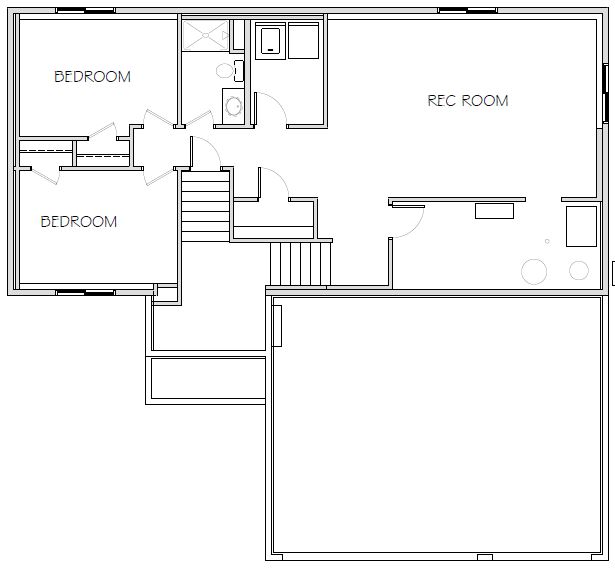
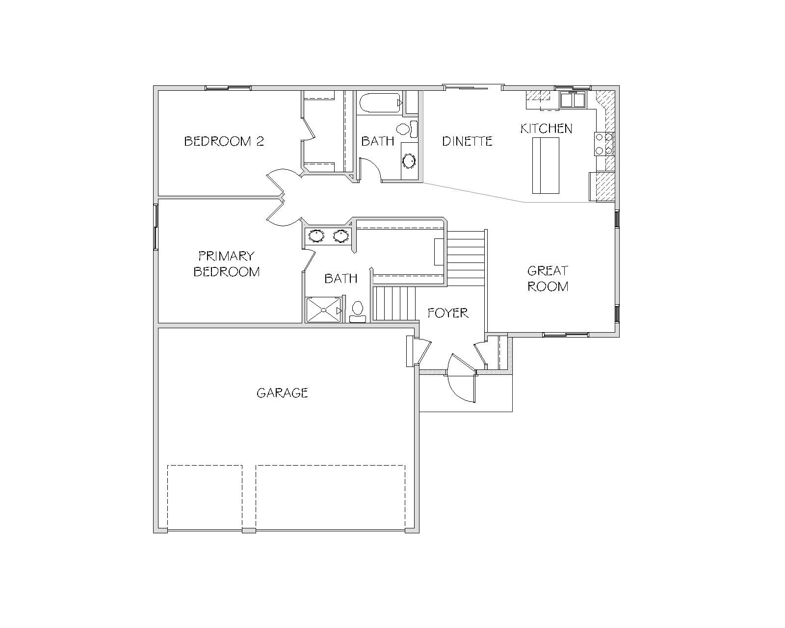
Sycamore

Executive Series – Split and Multi-Level