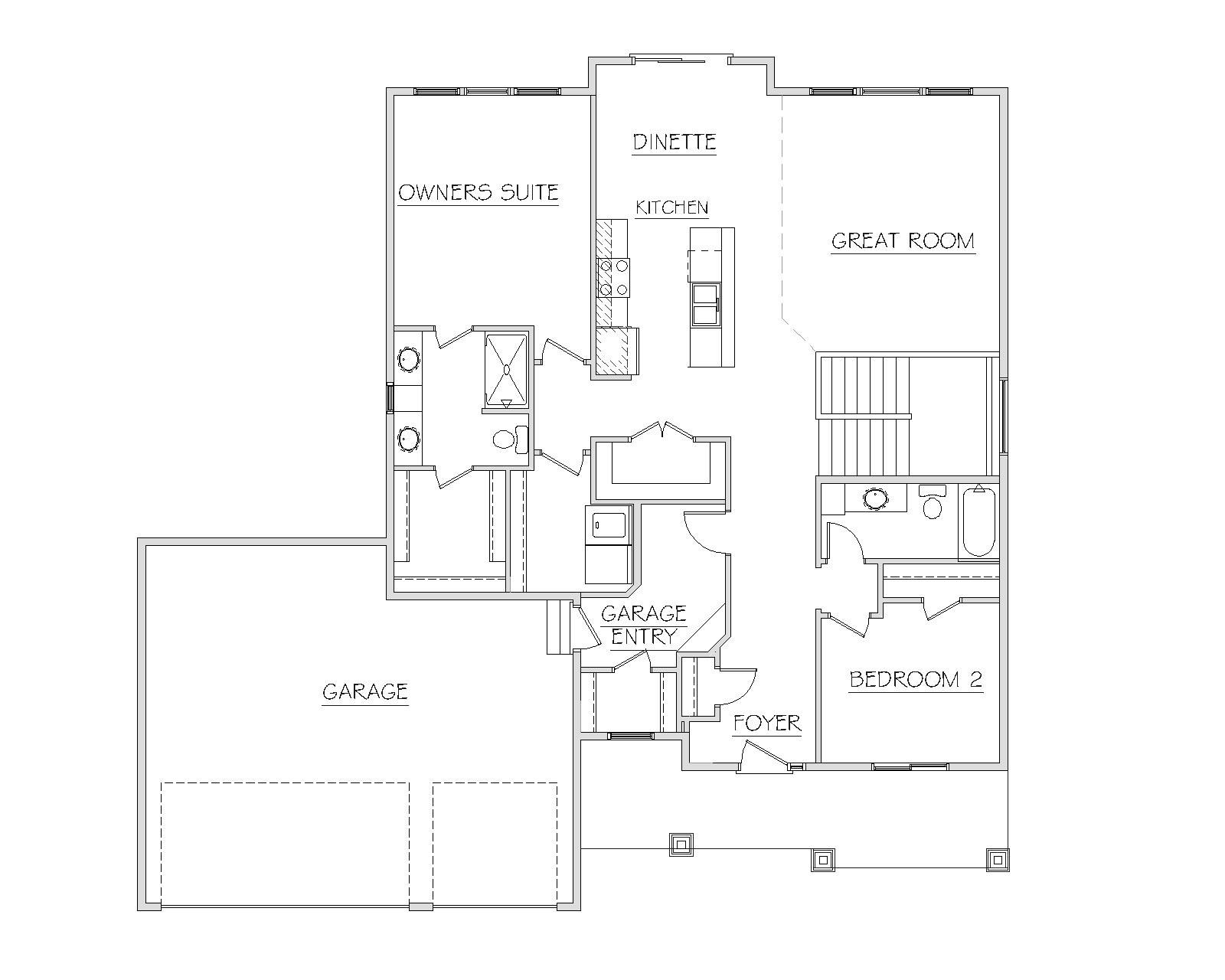
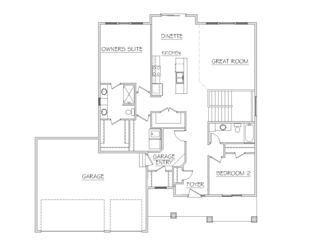
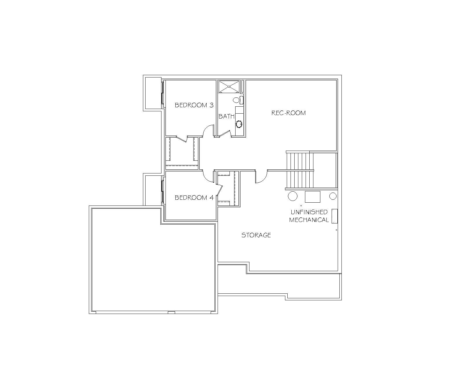
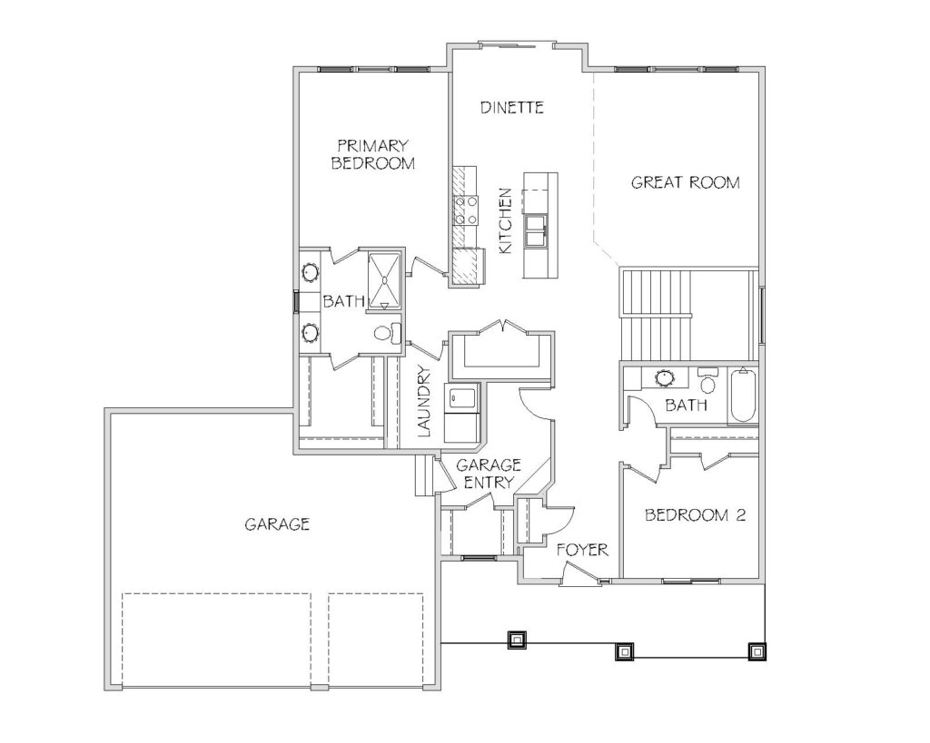
Canton II

Fieldstone Favorites – Rambler