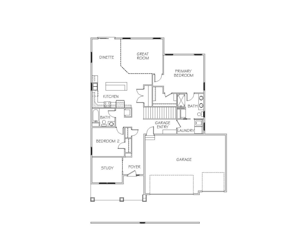
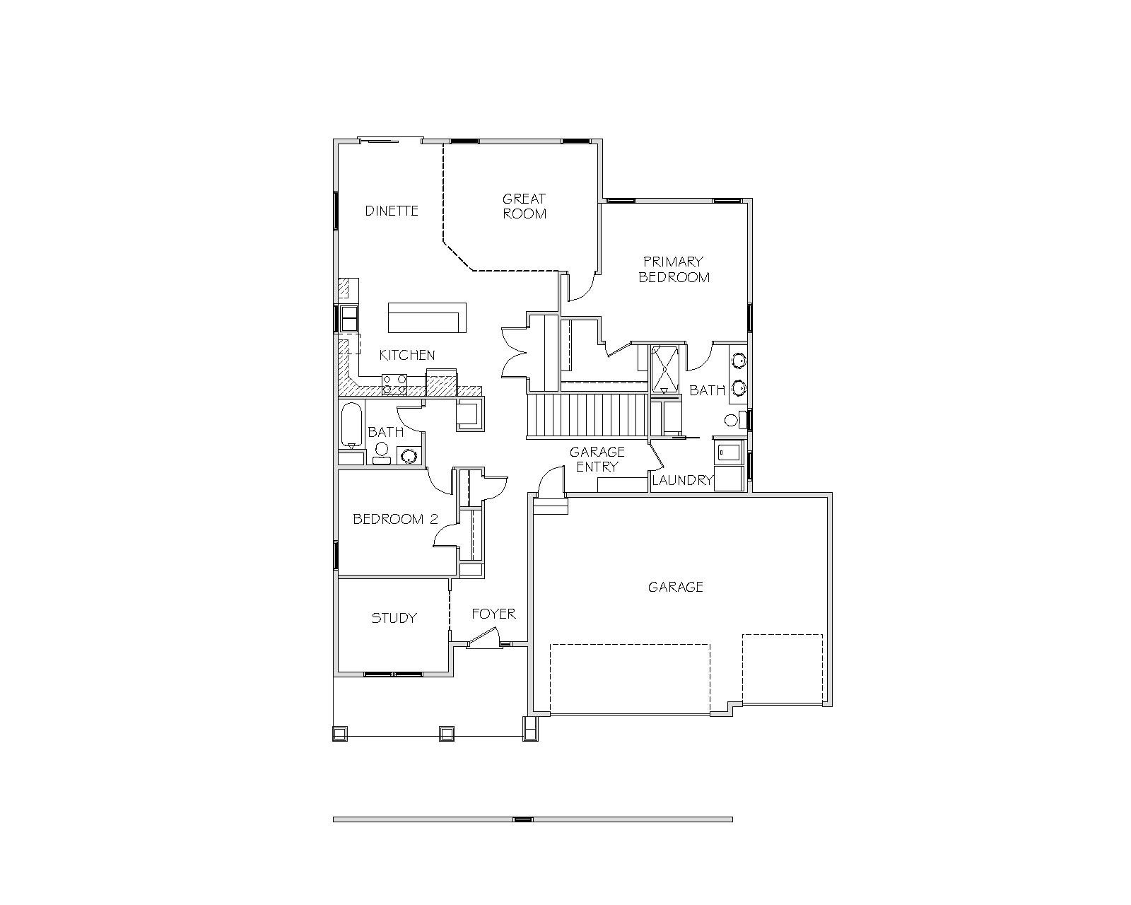
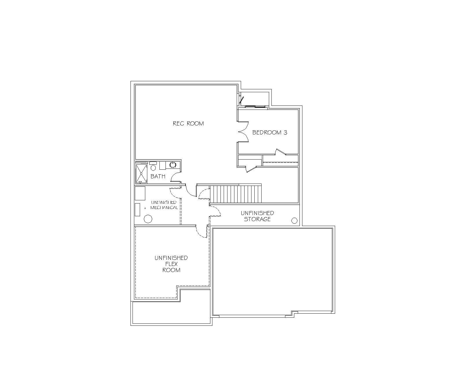
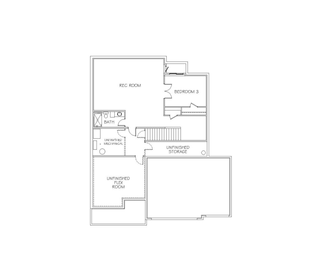
St. Croix

Fieldstone Favorites – Rambler