• Skip to main content
  • Skip to header right navigation
  • Skip to site footer
Fieldstone Family Homes

Fieldstone Family Homes

Minnesota & Wisconsin custom home builder

  • Find a Home
    • Communities
      • Byron – East Village
      • Cannon Falls – Hardwood Estates
      • Elko New Market – Pete’s Hill
      • Faribault – The Meadows
      • Inver Grove Heights – Peltier Reserve
      • Le Sueur – Ridge Road Development
      • Mankato – Groh Farms
      • Mankato – Prairie Winds Estates
      • North Mankato – Trail’s West Estates
      • Roseville – Victoria Shores
      • Watertown – The Cove
    • Available Homes
    • Parade of Homes 2026
  • Design a Home
    • Floor plans
    • Custom Homes
    • Favorites
    • Executive series
    • Build on your lot
  • Why Fieldstone
    • Meet the Team
    • Our Story
    • Customer Experience
    • Testimonials
    • Community Outreach
    • FAQs
    • Realtor Registration
    • 1-2-10 Warranty
    • Valued Vendors
  • Blog
  • Contact

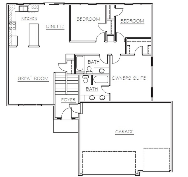
Innsbruck

Plan Features

Split and Multi-Level
3+
bedrooms
2+
bathrooms
3
garage
1,374
fin. sq. ft.

Floor Plans

Lower Level Floor Plan
Main Level Floor Plan

Disclaimer: Prices, floor plans, home elevations, options, upgrades, specifications, incentives, promotions and availability are subject to change without notice. Finished square footage and dimensions are approximate and subject to change without notice. Photos and/or illustrations may not depict actual home plan configuration and/or details and may show available options, neighborhood architectural guidelines and upgrades not included in the current base price of the home plan. Community improvements and amenities described are based upon current development plans and information furnished by others and are subject to change without notice. Community assessments and covenants, conditions and restrictions may apply. Promotions and incentives may require the use of a certain lender which is an affiliate of Fieldstone Family Homes, Inc. Floor plans and home elevations are used by permission by Fieldstone Family Homes, Inc and are protected by U.S. copyright laws. Please consult a Fieldstone Family Homes, Inc. New Home Sales Agent for complete and current information.

Request more information

Ready to build?

Interested in more information about our new home building process? Use the form to the right to tell us about your project.

Your Name(Required)
Consent(Required)
I agree to receive communications by text message about my inquiry. You may opt-out by replying STOP or reply HELP for more information. Message frequency varies. Message and data rates may apply. You may review our Privacy Policy to learn how your data is used.

Fieldstone Family Homes
801 Cliff Road East
Suite #135
Burnsville, MN 55337

Phone: (952) 469-8800

MN License #BC631164
WI License #DC-070800080

Fieldstone Family Homes, Inc. is a BBB Accredited Home Builder in Burnsville, MN
  • Facebook
  • Instagram
  • Pinterest
  • YouTube

Proud members of

Rochester Area Builders, Inc.

Women’s Council of Realtors®

NAHREP® Twin Cities

Green Path

Housing First

GuildQuality

Builders Association of Minnesota (BAM)

NAHB® National Association of Home Builders

Wisconsin Builders Association

St. Croix Valley Home Builders Association

Rochester Area Builders Inc.

Minnesota River Builders Association


Copyright © 2026 Fieldstone Family Homes, Inc. All rights reserved. | Privacy Policy

Disclaimer: Prices, floor plans, home elevations, options, upgrades, specifications, incentives, promotions and availability are subject to change without notice. Finished square footage and dimensions are approximate and subject to change without notice. Photos and/or illustrations may not depict actual home plan configuration and/or details and may show available options, neighborhood architectural guidelines and upgrades not included in the current base price of the home plan. Community improvements and amenities described are based upon current development plans and information furnished by others and are subject to change without notice. Community assessments and covenants, conditions and restrictions may apply. Promotions and incentives may require the use of a certain lender which is an affiliate of Fieldstone Family Homes, Inc. Floor plans and home elevations are used by permission by Fieldstone Family Homes, Inc and are protected by U.S. copyright laws. Please consult a Fieldstone Family Homes, Inc. New Home Sales Agent for complete and current information.